27572 Bremerhaven
Samstag / Sonntag: Geschlossen
info@bk-industrieservice.de
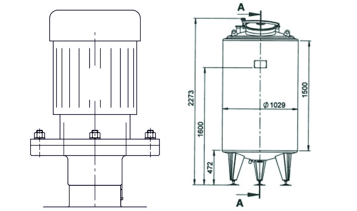
Ein schnell drehender Rotor, der von einem Deflektorrohr (Stator) umgeben ist, erzeugt einen nach unten gerichteten Leitstrahl, der den Flüssigkeitsstrom direkt auf den Behälterboden leitet..
Nehmen Sie Kontakt mit uns auf und lassen Sie sich professionell beraten. Unser Team steht Ihnen gerne zur Seite!